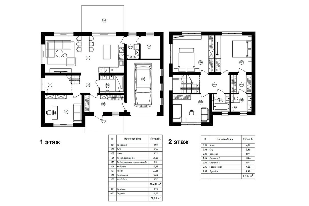
Строим двухэтажный дом 178м² с гаражом по проекту Резиденция в Первоуральском ГО, с. Новоалексеевское. Начали строить этот объект в самый разгар сезона - в июле, а в октябре уже завершили кровлю и установили окна и двери.
- Габариты дома - 13,6 на 10,5м
- Общая площадь - 175м²
- Терраса - 14,1м²
- Крыльцо - 8,1м²
Стоимость строительства коробки дома по проекту Резиденция 178м2 от 8’583’662 руб.
Конструктив:
- Фундамент: монолитная ж/б плита 30 см
- Стены: газобетон 30 см, перегородки 15 см
- Перекрытие: монолитная ж/б плита 18 см
- Кровля: многоскатная, гибкая черепица, водосточная система, подшивка кровли вагонкой
