Проект и реализация одноэтажного дома Макси 145м²: современный дом со вторым светом и отличной планировкой.
Стоимость строительства коробки дома по проекту Макси 145м² в 2025 году от 8’232’795 руб.
Выбрать комплектацию и рассчитать стоимость: /project/house/maksi-145-kvm
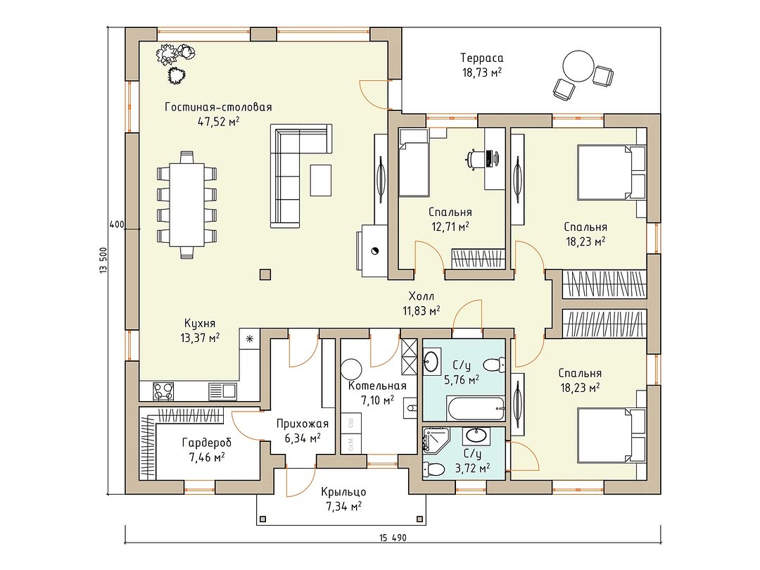
- Габариты дома - 13,5 на 15,5 м
- Общая площадь - 145 м²
- Крыльцо - 7,3 м²
- Терраса - 18,7 м²
Продуманная планировка для постоянного проживания:
- прихожая с отдельной гардеробной
- две спальни по 18,2 м²
- гостевая комната 12,7 м², которую можно использовать в качестве кабинета или еще одной спальни
- просторная кухня-гостиная со вторым светом и выходом на террасу
- два санузла
