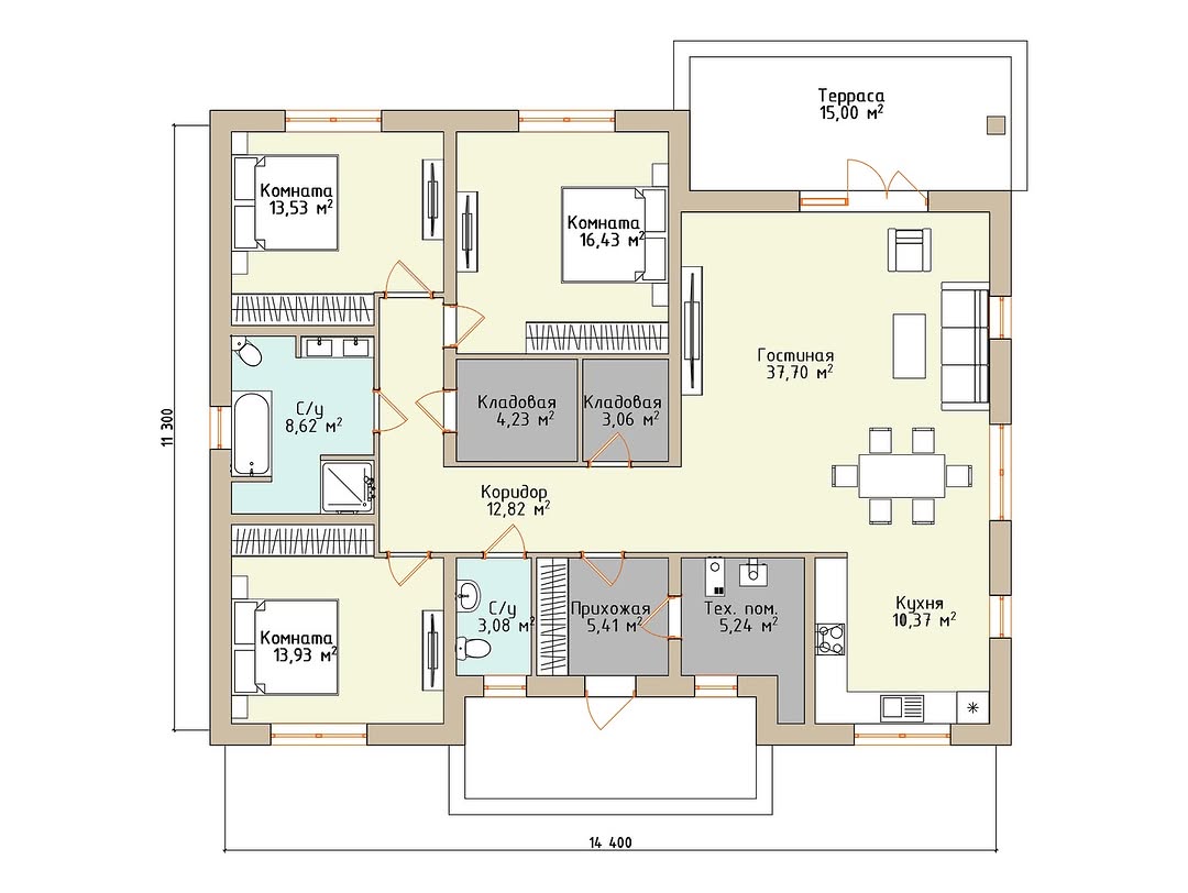
Типовой проект одноэтажного дома Современный 140м², для любителей планировок с коридором.
- Габариты дома - 15,2 на 14,1м
- Общая площадь - 138,9 м²
- Терраса - 16,2м²
- Крыльцо - 10,8м²
Удачная планировка для постоянного проживания:
- три спальни
- кухня-гостиная с выходом на крытую террасу
- два санузла (ванная комната и гостевой санузел при входе)
- предусмотрены помещения для хранения: кладовка при кухне и кладовая комната напротив прихожей
- холл, отделяющий зоны спален от гостиной
Коробка этого дома от 7’304’000 руб.
