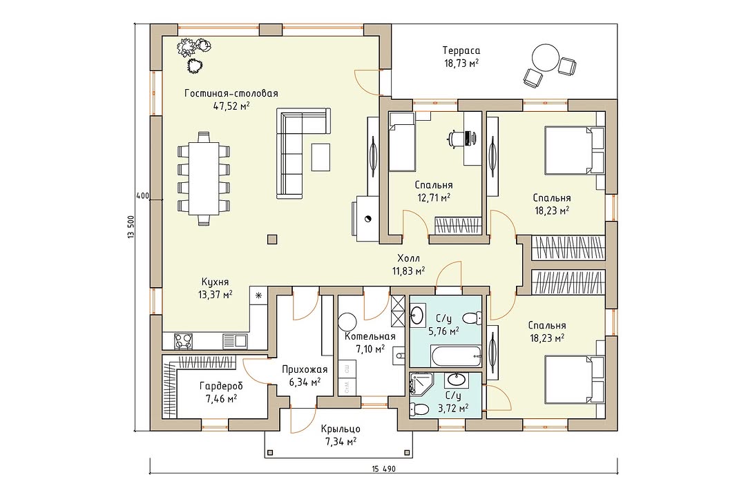
Одноэтажный дом по проекту Макси 145м²: больше пространства для загородного комфорт
Габариты дома - 13,5 на 15,5 м
Общая площадь - 145 м²
Крыльцо - 7,3 м²
Терраса - 18,7 м²
Просторный дом со вторым светом и идеальной планировкой для постоянного проживания:
- Прихожая с отдельной гардеробной
- Две спальни по 18,2 м²
- Гостевая комната, которую можно использовать в качестве кабинета
- Просторная кухня-гостиная со вторым светом и выходом на террасу
- Два санузла
Стоимость строительства коробки дома по проекту Макси 145м² в 2025 году от 8’232’795 руб.
