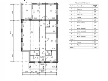
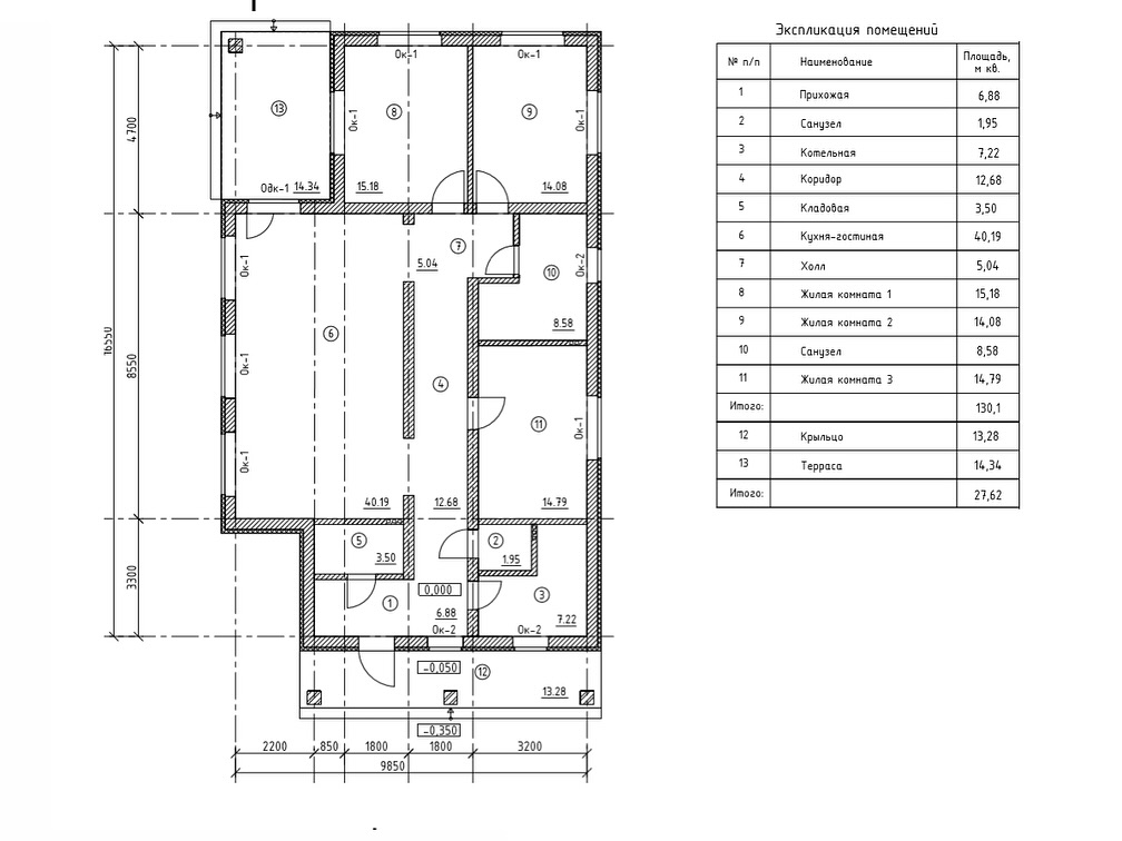
Одноэтажный дом 130м² по индивидуальному проекту в КП Заповедник, парк Косуля, построен нами в 2021 году и обжит заказчиками.
- Габариты дома - 17,35 на 10,65 м
- Общая площадь - 130м²
- Крыльцо - 13,3м²
- Терраса - 14,3м²
Планировка:
- родительская спальня с отдельным выходом на террасу
- кухня-гостиная с выходом на террасу и панорамными окнами
- две спальни
- два санузла
- прихожая
- кладовая и котельная
