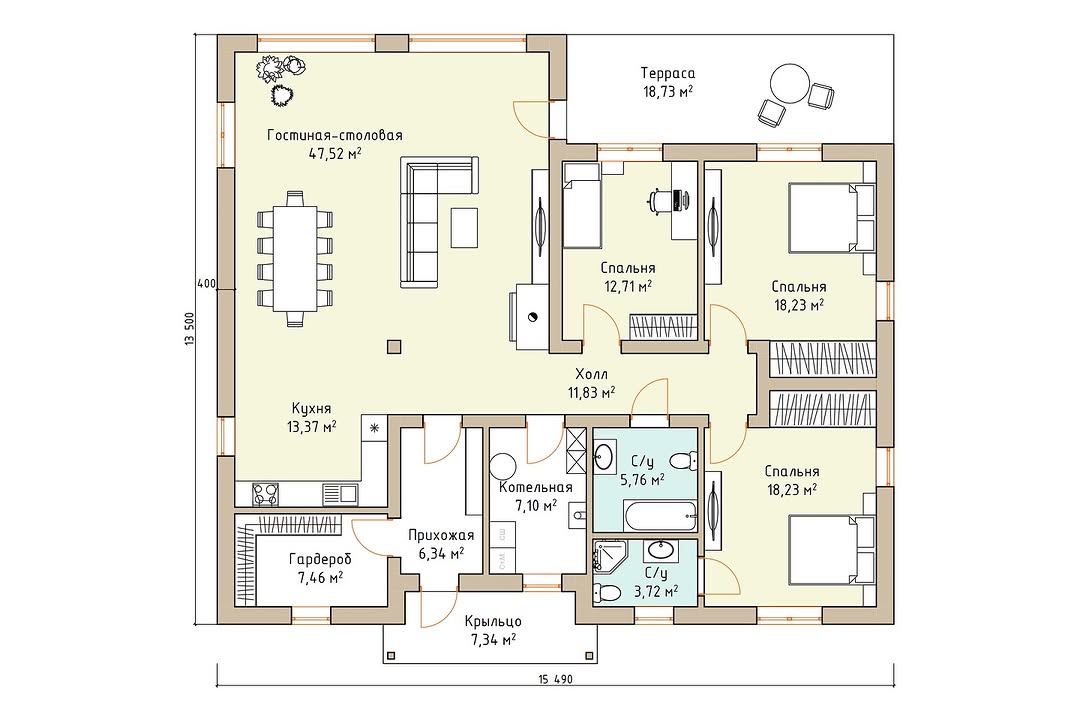
Монтируем кровлю двухэтажного дома 178м² с гаражом по проекту Резиденция в Первоуральском ГО, с. Новоалексеевское: спешим положить ОСБ и успеть закрыть его подкладочным ковром до наступления дождливой погоды.
Кровля дома: многоскатная с щипцом, холодный чердак, водосточная система, подшивка свесов вагонкой. В качестве финишного покрытия выбрали гибкую черепицу SHINGLAS Кантри, Алабама в кофейных тонах.
