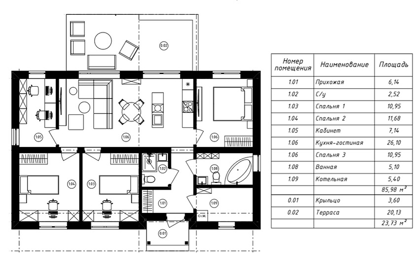
Одноэтажный дом по индивидуальному проекту в КП Заповедник, парк Малахит, год строительства - 2024.
При относительно небольшой площади мы уместили в планировку дома:
- три спальни по 11м²
- кухню-гостиную 26,1м² с панорамным остеклением и выходом на террасу
- кабинет 7,1м² (удаленщики точно оценят)
- санузел 2,5м² и ванну 5,1м²
- прихожую 6,1м², в которой не будет тесно одеваться всей семье
- котельную 5,4м²
Габариты - 8,2 на 13м
Общая площадь - 86м²
Крыльцо - 3,6м²
Терраса - 20,1м²
