Фасадные работы на объекте 125м² в КП Новая Околица: утеплили стены базальтовой ватой 100 мм, отштукатурили фасад и занимаемся декорированием элементами из облицовочного камня Ригель Кирпич. Облицовка таким материалом - кропотливая, ответственная работа: следите за нашими новостями, скоро поделимся итоговым результатом. Подглядеть за процессом облицовки можно сегодня в сториз
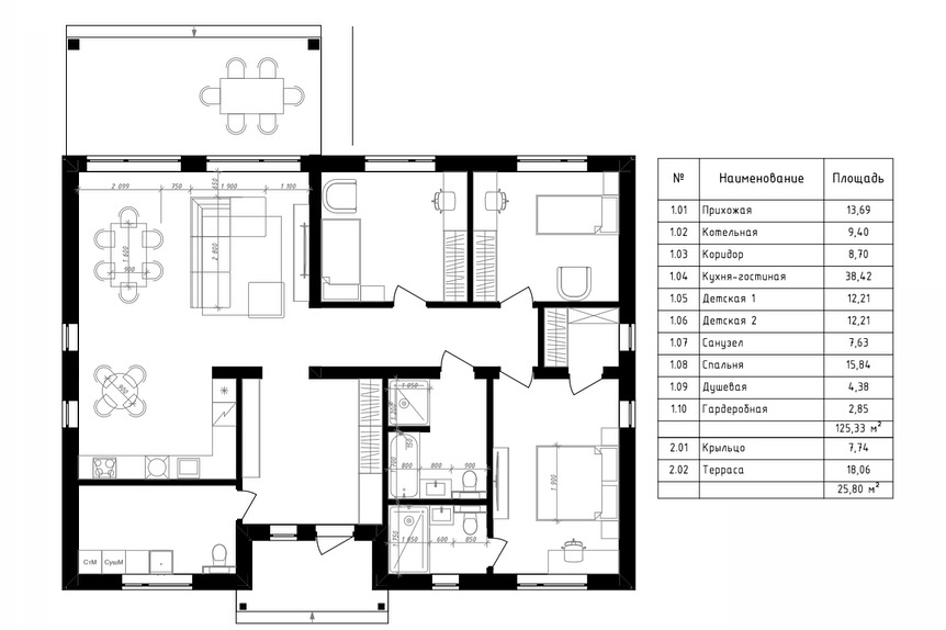
- Габариты дома: 11 на 14,5 м.
- Общая площадь - 125 м²
- Крыльцо - 7,7 м²
- Терраса - 18 м²
Подробнее о строительстве именного этого дома - на нашем YouTube-канале Инвест Строй: заходите посмотреть.
