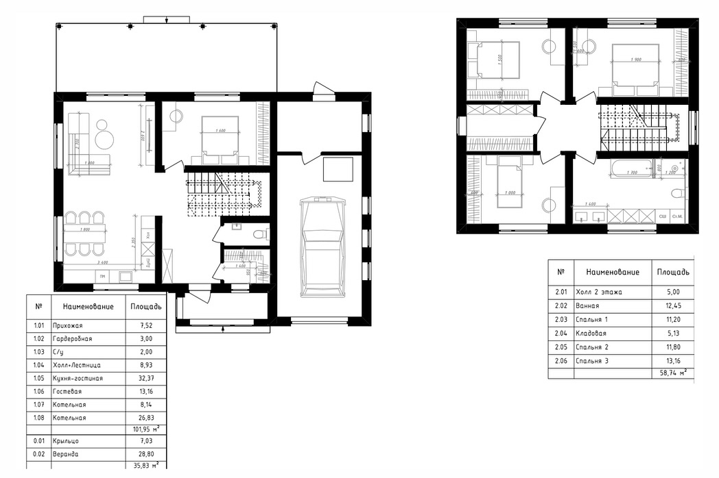
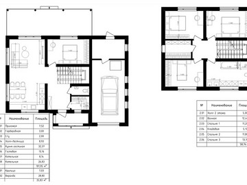
Закончили строительство коробки двухэтажного дома 161м² по индивидуальному проекту с гаражом и верандой в деревне Гусева.
Габариты дома - 13,8 на 13,3 м
Общая площадь - 161 м²
Веранда - 25 м²
Крыльцо - 7 м²
Комфортная планировка для постоянного проживания:
- 4 спальни (1 - гостевая, 3 на втором этаже)
- кухня-гостиная с выходом на остекленную веранду
- 2 санузла
- места для хранения: гардеробная и кладовая
- широкая прихожая
